Dreef 2
Een vrijstaande woning met prachtig polderuitzicht in de Vlist!
Vraagprijs: 645.000 euro k.k.
Oppervlakte wonen: 120,7 vierkante meter
Oppervlakte garage: 18,8 vierkante meter
Aantal woonlagen: 2
Aantal slaapkamers: 4
Energielabel: D
Parkeergelegenheid: op eigen terrein
Omschrijving
Aan de Dreef 2 te Vlist wordt deze vrijstaande woning met garage, carport, vier slaapkamers en prachtig polderuitzicht aangeboden!
Deze woning is gelegen op één van de mooiste locaties in Vlist en biedt een unieke combinatie van rust, ruimte en een landelijke woonbeleving. Hier ervaart men dagelijks het gevoel van vrijheid dankzij het weidse uitzicht over de omliggende polders, terwijl voorzieningen zich in nabijgelegen plaatsen bevinden. Maak jij hier jouw droomplek van?
De woning beschikt over een levensloopbestendige indeling, met twee slaapkamers en een badkamer op de begane grond. Daarnaast bevinden zich hier een lichte woonkamer en een aangrenzende keuken met directe toegang tot de zonnige achtertuin. Op de verdieping zijn nog eens twee slaapkamers gesitueerd.
Er zijn meerdere parkeermogelijkheden op eigen terrein, zowel in de garage als op de oprit en onder de carport. Dit maakt de woning niet alleen comfortabel, maar ook praktisch in gebruik!
Vlist staat bekend als een schilderachtig lintdorp in het Groene Hart, gelegen aan de gelijknamige rivier. Het dorp kenmerkt zich door historische boerderijen, molens en het uitgestrekte polderlandschap. Daarnaast is Vlist geliefd bij recreanten en natuurliefhebbers, met mogelijkheden voor wandelen, fietsen en in de winter zelfs schaatsen!
Voor dagelijkse voorzieningen zijn omliggende plaatsen zoals Schoonhoven en Haastrecht eenvoudig en binnen 10 minuten bereikbaar.
Bijzonderheden:
- Landelijk en rustig gelegen woning;
- Lichte woonkamer met aangrenzende keuken;
- Levensloopbestendige woning;
- Twee slaapkamers op de begane grond aanwezig (circa 12,6 en 7,6 vierkante meter);
- Twee slaapkamers op de verdieping aanwezig (circa 11,7 en 11,4 vierkante meter);
- Badkamer met een douche, een bad en een wastafel op de begane grond;
- Los toilet aanwezig;
- Garage naast de woning;
- Carport aanwezig;
- Ruim perceel met diverse zitgelegenheden en landelijk uitzicht;
- Zonnige achtertuin op het zuidoosten, gelegen aan het water;
- Meerdere parkeergelegenheden op eigen terrein aanwezig;
- Energielabel D;
- Oplevering in overleg;
- Indicatie (gemeentelijke) lasten opvraagbaar.
Indeling:
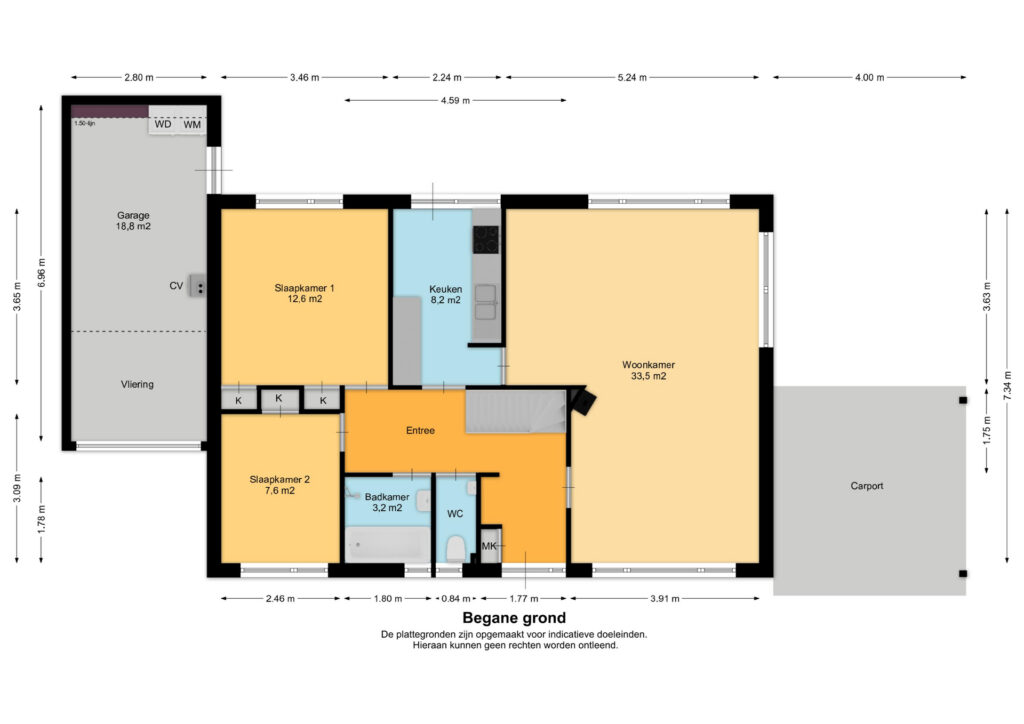
Begane grond
Via de deur aan de voorzijde van de woning bereikt men de entree. De entree biedt toegang tot de verschillende ruimtes op de begane grond, waaronder de woonkamer, de keuken, twee slaapkamers, de badkamer en het toilet. Tevens bevindt zich hier de trapopgang naar de verdieping en is er voldoende ruimte aanwezig voor een kapstok en/of schoenenkast.
De woonkamer is gesitueerd aan de voorzijde van de woning en kenmerkt zich door de grote raampartijen, waardoor er veel natuurlijk licht binnenvalt. Vanuit de woonkamer heeft men een prachtig uitzicht over de omliggende polders. De ruimte biedt voldoende plaats voor zowel een comfortabele zithoek als een eethoek.
Aangrenzend bevindt zich de landelijke keuken in een praktische opstelling, welke is uitgerust met een spoelbak, een inductiekookplaat met afzuigkap en een koelkast. De keuken biedt directe toegang tot de zonnige achtertuin. Hierdoor zijn binnen en buiten op een prettige manier met elkaar verbonden.
De woning heeft een levensloopbestendig karakter dankzij de twee slaapkamers op de begane grond (circa 12,6 en 7,6 vierkante meter). De badkamer bevindt zich eveneens op de begane grond en is voorzien van een douche, een bad en een wastafel. Daarnaast is er een separaat toilet met fonteintje aanwezig.
De entree en de keuken beschikken over een zeilvloer. De badkamer en het toilet beschikken over een tegelvloer. De woonkamer en de slaapkamers beschikken over vloerbedekking.
Verdieping
Via de trap in de entree bereikt men de verdieping. De ruime overloop beschikt over een dakkapel aan de achterzijde van de woning.
De verdieping beschikt over een derde slaapkamer met een oppervlakte van circa 11,7 vierkante meter en een vierde slaapkamer met een oppervlakte van circa 11,4 vierkante meter. De derde slaapkamer beschikt tevens over een wastafel.
Daarnaast beschikken beide slaapkamers over praktische opbergmogelijkheden onder het schuine dak.
De verdieping beschikt over vloerbedekking.
Garage
Naast de woning is een garage gesitueerd. Deze is zowel bereikbaar via de garagedeur aan de voorzijde van de woning als via een enkele deur vanuit de achtertuin. Met een oppervlakte van circa 18,8 vierkante meter én een vliering biedt de garage meer dan voldoende ruimte voor een parkeerplek en opbergmogelijkheden!
In de garage bevinden zich tevens de wasmachineaansluiting en de cv-installatie.
Tuin
De woning beschikt over een ruime, zonnige achtertuin met een landelijk karakter. De achtertuin op het zuidoosten is gelegen aan het water en biedt volop ruimte voor het realiseren van meerdere zit- en eetplekken. Via het pad aan de zijkant van de woning is de achtertuin tevens achterom bereikbaar!
De woning beschikt over meerdere parkeergelegenheden op eigen terrein; parkeren is mogelijk in en voor de garage en onder de carport!
* De woning is ingemeten conform de branchebrede meetinstructies (BBMI), afgeleid van de NEN 2580 normering. De meetinstructie is bedoeld om een meer eenduidige manier van meten toe te passen voor het geven van een indicatie van de gebruiksoppervlakte. De meetinstructie sluit verschillen in meetuitkomsten niet volledig uit, door bijvoorbeeld interpretatieverschillen, afrondingen of beperkingen bij het uitvoeren van de meting.
*De verstrekte informatie is met de nodige zorgvuldigheid samengesteld. Onzerzijds wordt echter geen enkele aansprakelijkheid aanvaard voor enige onvolledigheid, onjuistheid of anderszins, dan wel de gevolgen daarvan. Alle opgegeven maten en oppervlakten zijn indicatief.”
*De koopovereenkomst is pas rechtsgeldig na ondertekening.
De plattegronden zijn opgemaakt voor indicatieve doeleinden. Hieraan kunnen geen rechten worden ontleend.































































